CASO 2 - MOVIMIENTO GALPON.
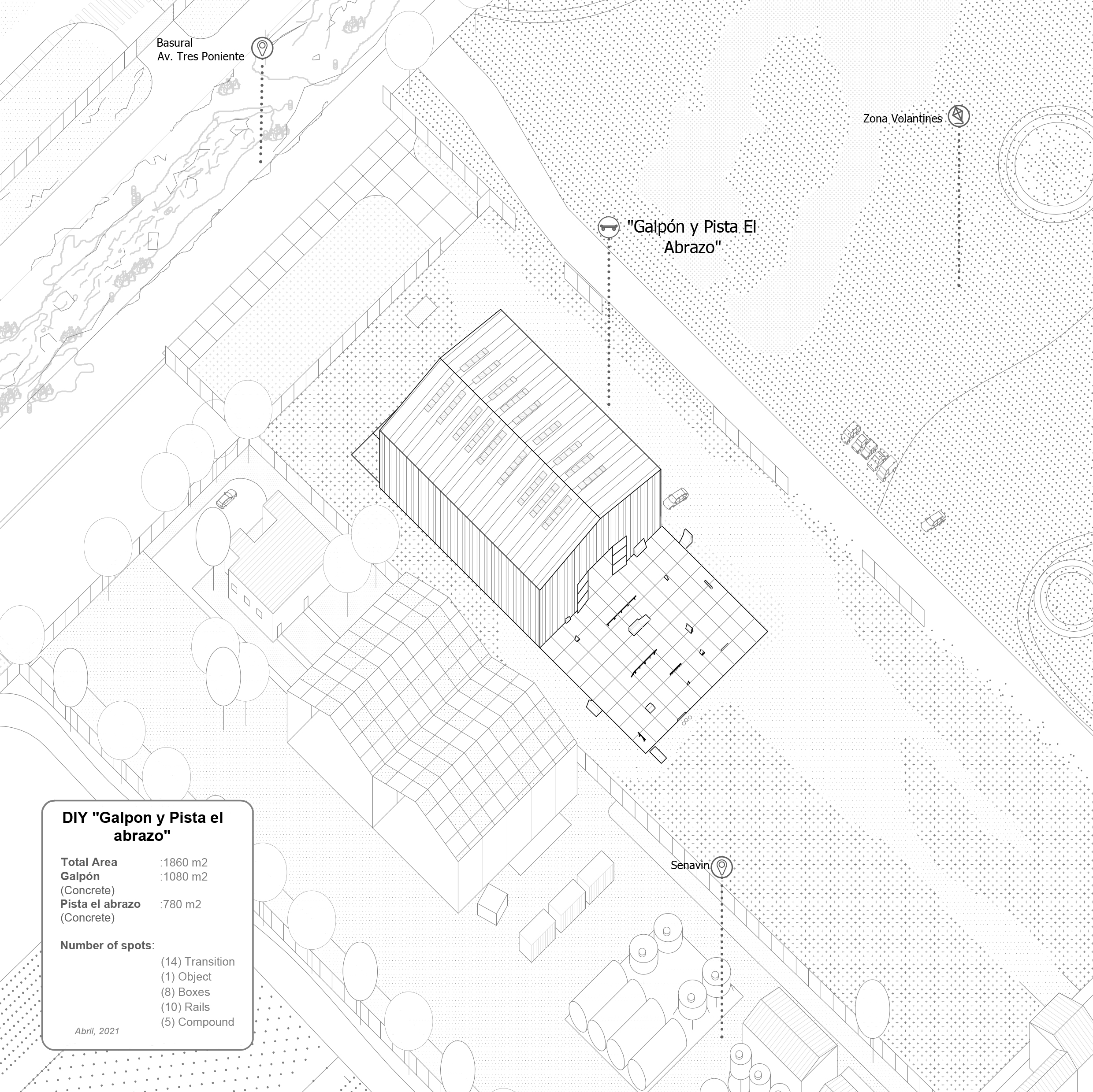
Ubicado en la periferia poniente de Santiago, específicamente en Villa El Abrazo, comuna de Maipú. Este lugar, que antes era una fábrica de servicios industriales que colinda con el conocido cordón industrial de Camino Melipilla y se enfrenta a pocos metros de la Villa residencial El Abrazo, se convirtió en un espacio residual en abandono y foco de inseguridad para la comunidad. En consecuencia y hace algunos años, un grupo de skaters locales se organizaron para recuperar el lugar, realizar trabajos de limpieza y hacer uso del espacio con el desarrollo, la práctica y cultura del Skateboarding.
Debido al cierre temporal del Galpón al comienzo de la pandemia por COVID-19 , un grupo de skaters decidió intervenir y consolidar la losa exterior para darle continuidad al uso del espacio. La iniciativa fue dando forma bajo la lógica de construir nuevos spot reciclando los materiales encontrados en el basural ilegal ubicado detrás de Galpón por Av. Tres Poniente. Debido a la motivación y los potenciales recursos encontrados allí, nace “Recicla spot” proyecto que busca maximizar los espacios para la práctica del skateboarding con materiales
reciclados.
Tipología: DIY (Autogestión)
Gestores: IG. @Mggalpon - @pistaelabrazo
Área total: 1.860 m2
Locación: Av 3 poniente 1147, Maipú, Chile.
Año: Desde 2017
Video: Pablo Letelier



